
2419 Marble Avenue NE
Rio Rancho, NM 87144
$599,990
4 bd • 3 ba • 2,602 sqft • 0.12 acres
2 Car
Garage
2 Story
Stories
$231
Per SQFT
2025
Year Built
08/26/2025
Listing Date
1090378
Listing #
About This Property
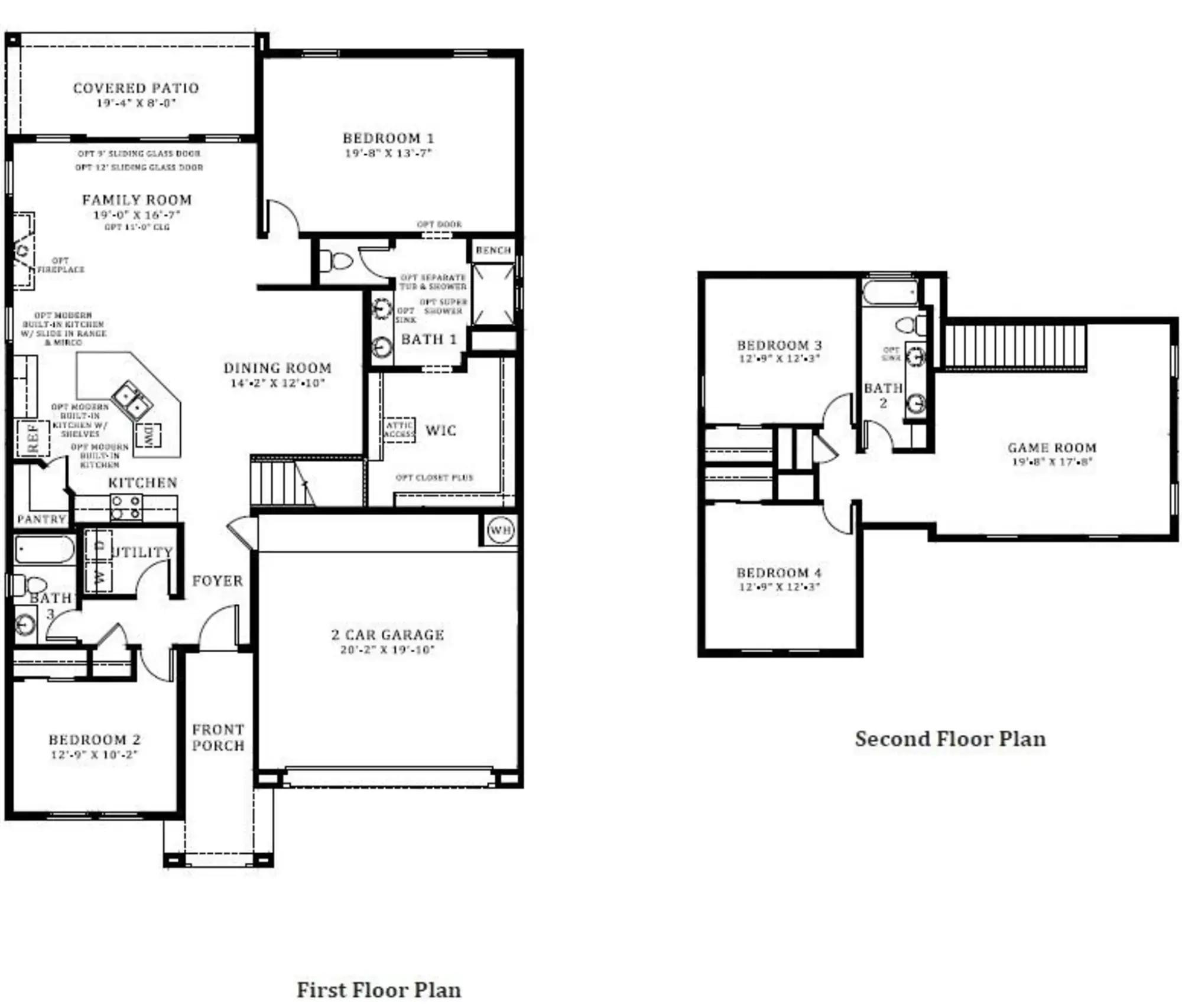
2602 sq. ft. 4 Bed 3 Bath Game Room Full Landscaping Beautiful 2-story home featuring 4 spacious bedrooms, 3 baths, and an upstairs game room. Open-concept floor plan with abundant natural light, updated beautiful design finishes, skip trowel texture, pot filler, and elegant spindle details. Gourmet kitchen with plenty of counter space and storage. Owner's suite offers comfort and privacy. Includes a full landscape package for true move-in readiness
Interior
Bathrooms Total:
3
Bathrooms Full:
3
Interior Features:
Dual Sinks, Garden Tub/Roman Tub, Kitchen Island, Loft, Main Level Primary, Separate Shower, Walk-In Closet(s)
Appliances:
Built-In Gas Oven, Built-In Gas Range, Cooktop, Dishwasher, Disposal, Microwave
Laundry Features:
Washer Hookup, Dryer Hookup, ElectricDryer Hookup
Flooring:
Carpet, Tile, Vinyl
Window Features:
Double Pane Windows, Insulated Windows, Low-Emissivity Windows
Foundation Details:
Slab
Building And Construction
Property Type:
Residential
Property Sub Type:
Detached
Property Sub Type Additional:
Detached
Building Area Total:
2,602 sqft
Year Built:
2025
Architectural Style:
A-Frame
Construction Materials:
Synthetic Stucco, Rock
New Construction:
Yes
Attached Garage (Y/N):
Yes
Garage (Y/N):
Yes
Garage Spaces:
2
Roof:
Tile
Builder Name:
D.R.Horton
Fencing:
Back Yard, Wall
Green Energy Efficient:
Windows
Green Water Conservation:
Water-Smart Landscaping
Levels:
Two
Stories:
2
Property Condition:
New Construction
Exterior And Lot
Lot Size Acres:
0.12
Lot Size Square Feet:
5,249 sqft
Exterior Features:
Fence, Private Yard, Sprinkler/Irrigation, Landscaping
Patio And Porch Features:
Covered, Patio
Parking Features:
Attached, Garage
Direction Faces:
West
Provisional
MLS #:
1090378
Listing Terms:
Cash, Conventional, FHA, VA Loan
Area And Schools
Association Fee:
$30 Monthly
Association Fee Includes:
Common Areas, Road Maintenance
Association (Y/N):
Yes
Community Features:
Common Grounds/Area
City:
Rio Rancho
Postal Code:
87144
MLS Area Major:
Rio Rancho Mid-North
Subdivision:
Stonegate
County:
Sandoval
Lot Features:
Landscaped, Xeriscape
Parcel Number:
1012071137145
Elementary School:
Colinas Del Norte
Middle School:
Eagle Ridge
High School:
V. Sue Cleveland
Utilities
Utilities:
Cable Available, Electricity Connected, Natural Gas Connected, Phone Available, Sewer Connected, Underground Utilities, Water Connected
Cooling:
Refrigerated
Heating:
Central, Forced Air
Heating (Y/N):
Yes
Water Source:
Public
Sewer:
Public Sewer
Location
Directions: From Northern and Unser, go east on Northern. Take left on Edinburgh, left on Candleston, model home will be located on right side.
Mortgage Calculator
$
$
%
Monthly Payment:
Properties for Sale Similar to 2419 Marble Avenue NE, Rio Rancho, NM
New Homes for Sale in Albuquerque Area
View All
Listing courtesy of D.R. Horton, Inc.
Some of the information contained herein has been provided by SWMLS, Inc. This information is from sources deemed reliable but not guaranteed by SWMLS, Inc. The information is for consumers’ personal, non-commerical use and may not be used for any purpose other than identifying properties which consumers may be interested in purchasing.


Daria Derebera
Real Estate Broker in Albuquerque, NM
Agent Contact Request Sent
Thank you for contacting us. An agent will reach out to you as soon as possible.
Showing Request Submitted
Thank you for scheduling a showing. We'll confirm the details with you shortly.
Schedule a Showing
Information Request Submitted
Thank you for your interest. We'll get back to you shortly.