Home / Sandia Park / North of I-40 / MLS #1100026
9 Calle De Prisa
4 Photos
9 Calle De Prisa Exterior Front
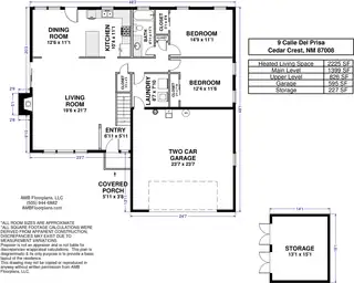
9 Calle De Prisa Floor Plan
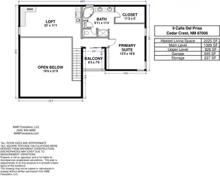
9 Calle De Prisa Floor Plan

9 Calle De Prisa

Sandia Park, NM 87047

$675,000
3 bd • 2 ba • 2,225 sqft • 14.55 acres
2 Car
Garage
2 Story
Stories
$303
Per SQFT
1998
Year Built
03/21/2026
Listing Date
1100026
Listing #

About This Property

Stunning custom mountain home situated in a quiet valley - the home is nestled on 14 beautiful acres offering stunning views of the Sandias. The open floor-plan features cathedral ceilings and an upper loft/family room area. The property consists of wooded and meadow areas and offers an enchanting, private backyard with a flagstone patio. Other features: detached shop/storage building, new roof, koi pond, walking distance to open space trails, new septic tank to be installed - all just minutes to ABQ.

Interior

Bathrooms Total: 2
Bathrooms Full: 2
Fireplace (Y/N): Yes
Fireplaces Total: 1
Fireplace Features: Custom
Interior Features: Ceiling Fan(s), Cathedral Ceiling(s), Central Vacuum, Garden Tub/Roman Tub, Country Kitchen, Multiple Living Areas
Appliances: Dishwasher, Free-Standing Gas Range, Refrigerator
Laundry Features: Electric Dryer Hookup, Propane Dryer Hookup
Flooring: Carpet, Tile
Window Features: Double Pane Windows, Insulated Windows
Foundation Details: Slab

Building And Construction

Property Type: Residential
Property Sub Type: Detached
Property Sub Type Additional: Detached
Building Area Total: 2,225 sqft
Year Built: 1998
Architectural Style: Custom, Northern New Mexico
Construction Materials: Frame
Attached Garage (Y/N): Yes
Garage (Y/N): Yes
Garage Spaces: 2
Roof: Pitched, Shingle
Builder Name: Lacy
Levels: Two
Stories: 2
Property Condition: Resale

Exterior And Lot

Lot Size Acres: 14.55
Lot Size Square Feet: 633,798 sqft
Exterior Features: Private Yard
Patio And Porch Features: Open, Patio
Parking Features: Attached, Garage, Garage Door Opener
Direction Faces: West
View (Yes/No): Yes

Provisional

MLS #: 1100026
Listing Terms: Cash, Conventional, VA Loan

Area And Schools

City: Sandia Park
Postal Code: 87047
MLS Area Major: North of I-40
County: Bernalillo
Lot Features: Landscaped, Meadow, Views, Wooded
Other Structures: Storage, Workshop
Road Frontage Type: Private Road
Road Surface Type: Gravel
Parcel Number: 103006144548810112
Elementary School: San Antonito
Middle School: Roosevelt
High School: Manzano

Utilities

Utilities: Phone Connected
Cooling: Evaporative Cooling
Heating: Baseboard
Heating (Y/N): Yes
Water Source: Shared Well
Sewer: Septic Tank

Location

Loading map...

Directions: North 14 to right on Ridge Road, follow pavement. At stop sign turn left, then right on Pinon Trail. Follow to Calle De Prisa, right to the end of the road - house is on the left.

Mortgage Calculator

$
$
%
Monthly Payment**:
** All calculations are estimates and provided for informational purposes only. Actual amounts may vary.

Properties for Sale Similar to 9 Calle De Prisa, Sandia Park, NM

New Homes for Sale in Albuquerque Area

View All
Listing courtesy of Realty One of New Mexico
Southwest MLS Logo Some of the information contained herein has been provided by SWMLS, Inc. This information is from sources deemed reliable but not guaranteed by SWMLS, Inc. The information is for consumers’ personal, non-commerical use and may not be used for any purpose other than identifying properties which consumers may be interested in purchasing.
Daria Derebera Realtor

Daria Derebera

Real Estate Broker in Albuquerque, NM