6 Derek Court
Pending
48 Photos
3d tour link
6 Derek Court Exterior Front
6 Derek Court Living Room
6 Derek Court Kitchen
6 Derek Court Patio
6 Derek Court Backyard
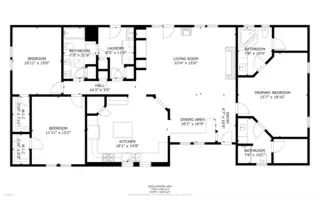
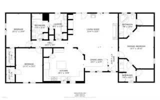
6 Derek Court Floor Plan

6 Derek Court

Sandia Park, NM 87047

$289,000
-10,000$ 03/07
3 bd • 3 ba • 2,036 sqft • 0.78 acres
1 Story
Stories
$142
Per SQFT
1999
Year Built
02/12/2026
Listing Date
1098232
Listing #
87047
Zip Code

About This Property

$10k Price Reduction! Welcome home to this gorgeous Sandia Park retreat nestled in the trees at the end of a quiet cul-de-sac with a long driveway for added privacy. Home updated with laminate flooring, NEW carpet, and tile throughout. Kitchen and baths feature granite countertops and a coordinating glass backsplash. The split floorplan offers spacious bedrooms and ample closets. The primary suite includes his-and-hers bathrooms, two walk-in closets, a jetted tub, and separate shower. Enjoy the large kitchen and living area with a cozy pellet stove, solid wood cabinets, island, pantry, stainless steel appliances, breakfast nook with built-in bench, laundry/mud room with utility sink. Home includes new roof (2026), upgraded refrigerated air, and deck just off the living room.

Interior

Bathrooms Total: 3
Bathrooms Full: 2
Bathrooms Three Quarter: 1
Fireplace (Y/N): Yes
Fireplaces Total: 1
Fireplace Features: Pellet Stove
Interior Features: Breakfast Area, Ceiling Fan(s), Great Room, Jetted Tub, Kitchen Island, Living/Dining Room, Main Level Primary, Pantry, Skylights, Separate Shower, Walk-In Closet(s)
Appliances: Dishwasher, Free-Standing Gas Range, Microwave
Laundry Features: Electric Dryer Hookup
Flooring: Carpet, Laminate, Tile
Window Features: Thermal Windows, Skylight(s)
Foundation Details: Permanent
Room Type: Primary Bedroom

Building And Construction

Property Type: Residential
Property Sub Type: Manufactured Home, Mobile Home
Property Sub Type Additional: Manufactured Home, Mobile Home
Building Area Total: 2,036 sqft
Year Built: 1999
Architectural Style: Mobile Home
Construction Materials: Frame, Stucco
Roof: Pitched, Shingle
Body Type: Double Wide
Levels: One
Mobile Length: 66
Mobile Width: 33
Stories: 1
Property Condition: Resale

Exterior And Lot

Lot Size Acres: 0.78
Lot Size Square Feet: 34,020 sqft
Exterior Features: Deck, Private Yard, Propane Tank - Owned
Patio And Porch Features: Covered, Deck, Patio
Direction Faces: Northeast
View (Yes/No): Yes

Provisional

MLS #: 1098232
Listing Terms: Cash, Conventional, FHA, VA Loan

Area And Schools

City: Sandia Park
Postal Code: 87047
MLS Area Major: North of I-40
Subdivision: Sandia Knolls Subd
County: Bernalillo
Lot Features: Cul-De-Sac, Landscaped, Many Trees, Views, Wooded
Other Structures: Gazebo, Shed(s)
Road Surface Type: Dirt, Gravel
Parcel Number: 103306322318430615
Elementary School: San Antonito
Middle School: Roosevelt
High School: Manzano

Utilities

Utilities: Electricity Connected, Propane, Water Connected
Cooling: Refrigerated
Heating: Central, Forced Air
Heating (Y/N): Yes
Water Source: Community/Coop
Sewer: Septic Tank

Location

Loading map...

Directions: From ABQ, head east on I-40 and take #175 north towards Cedar Crest. Take North 14 for about 6 miles and turn right onto Frost Road, follow for 2 miles and turn left onto Camino Alto. Stay on the road as it turns into Oakhill, Sharp and Darby. Turn right onto Olive, left onto Jennifer, right on Derek Road, and then right onto Derek Court - follow to the end of the cul-de-sac.

Mortgage Calculator

$
$
%
Monthly Payment**:
** All calculations are estimates and provided for informational purposes only. Actual amounts may vary.

Properties for Sale Similar to 6 Derek Court, Sandia Park, NM

New Homes for Sale in Albuquerque Area

View All
Listing courtesy of Property Partners Inc.
Southwest MLS Logo Some of the information contained herein has been provided by SWMLS, Inc. This information is from sources deemed reliable but not guaranteed by SWMLS, Inc. The information is for consumers’ personal, non-commerical use and may not be used for any purpose other than identifying properties which consumers may be interested in purchasing.
Daria Derebera Realtor

Daria Derebera

Real Estate Broker in Albuquerque, NM