
6525 COCHITI Road SE
Albuquerque, NM 87108
$399,900
0.65 acres
10/06/2025
Listing Date
1092528
Listing #
87108
Zip Code
Bernalillo
County
About This Property
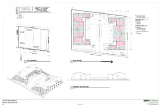
** Priced to sell! Development site with 24-unit apartment plans. Conceptual plans have already been approved by the City of Albuquerque's Development Review Board and the Fire Marshal's Office. Owner financing is available--20 % down, 3-5-year term, plus additional options. Build-to-suit services (custom design and construction available at cost) can also be arranged.
Building And Construction
Property Type:
Land
Fencing:
Gate, Partial
Exterior And Lot
Lot Size Acres:
0.65
Lot Size Square Feet:
28,314 sqft
Parking Features:
Paved
Provisional
MLS #:
1092528
Current Use:
Commercial, Industrial
Listing Terms:
Cash, Conventional, Owner May Carry
Possible Use:
Commercial, Industrial
Area And Schools
Community Features:
Curbs, Gutter(s), Sidewalks
City:
Albuquerque
Postal Code:
87108
MLS Area Major:
Southeast Heights
Subdivision:
Fairgrounds Addition
County:
Bernalillo
Topography:
Level
Distance To Electric Comments:
In Street
Distance To Gas Comments:
In Street
Distance To Phone Service Comments:
Call Listing Broker
Distance To Sewer Comments:
In Street
Distance To Water Comments:
In Street
Number Of Lots:
4
Parcel Number:
101805737810941407
Elementary School:
Whittier
Middle School:
Van Buren
High School:
Highland
Utilities
Utilities:
Electricity Available, Natural Gas Available, Sewer Available, Water Available
Water Source:
Public
Sewer:
Public Sewer
Location
Directions: I-40 E to Exit 162 (Louisiana Blvd SE); turn right onto Louisiana Blvd SE, then right onto Cochiti Rd SE. Property on the right at 6525 Cochiti Rd SE.
Mortgage Calculator
$
$
%
Monthly Payment:
New Homes for Sale in Albuquerque Area
View All
Listing courtesy of Coldwell Banker Legacy
Some of the information contained herein has been provided by SWMLS, Inc. This information is from sources deemed reliable but not guaranteed by SWMLS, Inc. The information is for consumers’ personal, non-commerical use and may not be used for any purpose other than identifying properties which consumers may be interested in purchasing.


Daria Derebera
Real Estate Broker in Albuquerque, NM
Agent Contact Request Sent
Thank you for contacting us. An agent will reach out to you as soon as possible.
Showing Request Submitted
Thank you for scheduling a showing. We'll confirm the details with you shortly.
Schedule a Showing
Information Request Submitted
Thank you for your interest. We'll get back to you shortly.