Home / Albuquerque / UNM South / MLS #1096863
216 Aliso Drive SE
Pending
41 Photos
216 Aliso Drive SE Exterior Front
216 Aliso Drive SE Dining Room
216 Aliso Drive SE Kitchen
216 Aliso Drive SE Bedroom
216 Aliso Drive SE Interior Other
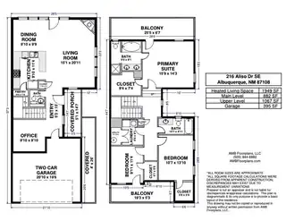
216 Aliso Drive SE Floor Plan

216 Aliso Drive SE

Albuquerque, NM 87108

$390,000
-5,000$ 02/27
3 bd • 3 ba • 1,949 sqft
2 Car
Garage
2 Story
Stories
$200
Per SQFT
2006
Year Built
01/16/2026
Listing Date
1096863
Listing #

About This Property

Gorgeous, thoughtfully designed contemporary townhome in the heart of Nob Hill, offering refined living in a private, gated setting. Professionally refinished hardwood floors (no carpet) complement the open floor-plan and abundant natural light. Two distinct living areas provide exceptional flexibility, offering space for a home office, gym, or creative space. The primary suite is privately separated from the additional bedrooms and features direct access to private deck. An attached two-car garage adds everyday convenience. As a rare end unit, this home enjoys a private courtyard/patio along with access to a beautifully landscaped shared courtyard--creating a perfect balance of privacy and community. Don't miss your opportunity to live in this desirable community and location.

Interior

Bedrooms Possible: 4
Bathrooms Total: 3
Bathrooms Full: 2
Bathrooms Half: 1
Fireplace (Y/N): Yes
Fireplaces Total: 1
Interior Features: Ceiling Fan(s), Garden Tub/Roman Tub, Home Office, Multiple Living Areas, Pantry, Separate Shower, Walk-In Closet(s)
Appliances: Dryer, Free-Standing Gas Range, Refrigerator, Washer
Laundry Features: Electric Dryer Hookup
Flooring: Carpet Free, Wood
Window Features: Double Pane Windows, Insulated Windows

Building And Construction

Property Type: Residential
Property Sub Type: Attached, Townhouse
Property Sub Type Additional: Attached, Townhouse
Building Area Total: 1,949 sqft
Year Built: 2006
Architectural Style: Contemporary
Construction Materials: Frame
Attached Garage (Y/N): Yes
Garage (Y/N): Yes
Garage Spaces: 2
Roof: Flat
Entry Level: 1
Fencing: Gate
Levels: Two
Number Of Units Total: 20
Stories: 2
Structure Type: Townhouse
Property Condition: Resale

Exterior And Lot

Exterior Features: Courtyard, Deck, Landscaping
Patio And Porch Features: Deck
Parking Features: Attached, Garage, Garage Door Opener
Direction Faces: North

Provisional

MLS #: 1096863
Listing Terms: Cash, Conventional, FHA, VA Loan

Area And Schools

Association Fee: $400 Monthly
Association Fee Includes: Common Areas, Maintenance Grounds
Community Features: Common Grounds/Area, Gated
City: Albuquerque
Postal Code: 87108
MLS Area Major: UNM South
County: Bernalillo
Lot Features: Landscaped, Planned Unit Development
Road Frontage Type: City Street
Road Surface Type: Paved
Parcel Number: 101705712118332609
Elementary School: Bandelier
Middle School: Wilson
High School: Highland

Utilities

Utilities: Electricity Connected, Natural Gas Connected, Sewer Connected, Water Connected
Cooling: Refrigerated
Heating: Central, Forced Air, Natural Gas
Heating (Y/N): Yes
Water Source: Public
Sewer: Public Sewer

Location

Directions: From Coal Ave SW going East, Turn left (North) onto Solano Dr SE. Turn right at the 3rd cross street onto Silver Ave SE. Turn right onto Aliso Dr SE. Destination will be on the left. Enter Complex from Aliso pedestrian entrance.

Mortgage Calculator

$
$
%
Monthly Payment**:
** All calculations are estimates and provided for informational purposes only. Actual amounts may vary.

Properties for Sale Similar to 216 Aliso Drive SE, Albuquerque, NM

New Homes for Sale in Albuquerque Area

View All
Listing courtesy of Keller Williams Realty
Southwest MLS Logo Some of the information contained herein has been provided by SWMLS, Inc. This information is from sources deemed reliable but not guaranteed by SWMLS, Inc. The information is for consumers’ personal, non-commerical use and may not be used for any purpose other than identifying properties which consumers may be interested in purchasing.
Daria Derebera Realtor

Daria Derebera

Real Estate Broker in Albuquerque, NM