Home / Moriarty / South Moriarty / Echo Ridge / MLS #1098133
11 Delaware Court
Pending
23 Photos
11 Delaware Court Exterior Front
11 Delaware Court Living Room
11 Delaware Court Kitchen
11 Delaware Court Kitchen
11 Delaware Court Kitchen
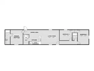
11 Delaware Court Floor Plan

11 Delaware Court

Moriarty, NM 87035

$159,900
-5,100$ 03/23
3 bd • 2 ba • 1,064 sqft • 0.52 acres
1 Story
Stories
$150
Per SQFT
2025
Year Built
02/11/2026
Listing Date
1098133
Listing #
87035
Zip Code

About This Property

Move-in ready and waiting for its very first owner! This brand-new 3-bedroom, 2-bath manufactured home sits on a permanent foundation and qualifies for FHA financing, making ownership more accessible and convenient. Set on a half-acre lot with community water and refrigerated air, the home offers modern comfort with space to grow.Inside, you'll find a bright, open floor plan with stylish contemporary finishes designed for easy, everyday living. Outside, the oversized lot gives you the freedom to add a garage or workshop, park your RV and recreational vehicles, or design the outdoor space you've always wanted. Enjoy the peace of country-style living with quick access to I-40, just minutes from Edgewood, Albuquerque, and Santa Rosa. A turnkey new home with room to make it your own.

Interior

Bathrooms Total: 2
Bathrooms Full: 2
Interior Features: Tub Shower
Appliances: Dishwasher, Free-Standing Gas Range, Refrigerator
Laundry Features: Electric Dryer Hookup
Flooring: Vinyl
Window Features: Double Pane Windows, Insulated Windows
Foundation Details: Permanent

Building And Construction

Property Type: Residential
Property Sub Type: Manufactured Home
Property Sub Type Additional: Manufactured Home
Building Area Total: 1,064 sqft
Year Built: 2025
Construction Materials: Wood Siding
New Construction: Yes
Roof: Pitched, Shingle
Builder Model: TRU Glory TRS14763BH
Builder Name: Tru
Levels: One
Mobile Length: 14
Mobile Width: 76
Model: TRU Glory TRS14763BH
Stories: 1
Property Condition: New Construction

Exterior And Lot

Lot Size Acres: 0.52
Lot Size Square Feet: 22,782 sqft
Direction Faces: West

Provisional

MLS #: 1098133
Listing Terms: Cash, Conventional, FHA, VA Loan

Area And Schools

City: Moriarty
Postal Code: 87035
MLS Area Major: South Moriarty
Subdivision: Echo Ridge
County: Torrance
Lot Features: Cul-De-Sac
Parcel Number: 1015073207069

Utilities

Utilities: Electricity Connected, Natural Gas Connected, Sewer Connected, Water Connected
Cooling: Refrigerated
Heating: Central, Forced Air, Natural Gas
Heating (Y/N): Yes
Water Source: Community/Coop
Sewer: Septic Tank

Location

Loading map...

Directions: From State highway 41 head east on Heritage Rd, then right on Echo Ridge Road, then right on Delaware Ct.

Mortgage Calculator

$
$
%
Monthly Payment**:
** All calculations are estimates and provided for informational purposes only. Actual amounts may vary.

Properties for Sale Similar to 11 Delaware Court, Moriarty, NM

New Homes for Sale in Albuquerque Area

View All
Listing courtesy of Double Eagle Real Estate
Southwest MLS Logo Some of the information contained herein has been provided by SWMLS, Inc. This information is from sources deemed reliable but not guaranteed by SWMLS, Inc. The information is for consumers’ personal, non-commerical use and may not be used for any purpose other than identifying properties which consumers may be interested in purchasing.
Daria Derebera Realtor

Daria Derebera

Real Estate Broker in Albuquerque, NM