219 Embudo Avenue SW
2 Photos
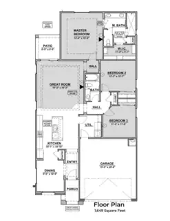
219 Embudo Avenue SW Floor Plan

219 Embudo Avenue SW

Los Lunas, NM 87031

$353,230
-5,000$ 05/19
3 bd • 2 ba • 1,649 sqft • 0.13 acres
2 Car
Garage
1 Story
Stories
$214
Per SQFT
2026
Year Built
04/10/2026
Listing Date
1101507
Listing #

About This Property

The Bosque floorplan at Vista Sandia in Los Lunas, New Mexico is a well-balanced single-story home that combines open-concept living with thoughtful design and everyday functionality. Offering approximately 1,649 square feet, 3 bedrooms, and 2 bathrooms, this home is ideal for buyers looking for more space and comfort while staying within reach of Albuquerque.Designed for modern living, the home welcomes you with a defined entry that opens into a bright and inviting great room, dining area, and kitchen. The open layout creates a seamless flow, making it perfect for entertaining, family time, or relaxed everyday living.At the heart of the home, the spacious kitchen features a large central island, providing the perfect space for cooking, gathering, or casual dining.

Interior

Bathrooms Total: 2
Bathrooms Full: 2
Interior Features: Dual Sinks, Entrance Foyer, Family/Dining Room, Kitchen Island, Living/Dining Room, Main Level Primary, Pantry, Water Closet(s), Walk-In Closet(s)
Laundry Features: Electric Dryer Hookup
Flooring: Carpet, Tile
Window Features: Sliding

Building And Construction

Property Type: Residential
Property Sub Type: Detached
Property Sub Type Additional: Detached
Building Area Total: 1,649 sqft
Year Built: 2026
Construction Materials: Frame, Stucco
New Construction: Yes
Attached Garage (Y/N): Yes
Garage (Y/N): Yes
Garage Spaces: 2
Roof: Pitched
Builder Name: Hakes Brothers Abq LLC
Levels: One
Stories: 1
Property Condition: New Construction

Exterior And Lot

Lot Size Acres: 0.13
Lot Size Square Feet: 5,663 sqft
Patio And Porch Features: Covered, Patio
Parking Features: Attached, Garage
Direction Faces: Northwest

Provisional

MLS #: 1101507
Listing Terms: Cash, Conventional, FHA, VA Loan

Area And Schools

Association Fee: $1440 Annually
Association Fee Includes: Common Areas
Association (Y/N): Yes
City: Los Lunas
Postal Code: 87031
MLS Area Major: W Los Lunas
County: Valencia
Lot Features: Planned Unit Development
Parcel Number: 1005039442336

Utilities

Utilities: Electricity Connected, Natural Gas Connected, Sewer Connected, Water Connected
Cooling: Refrigerated
Heating: Forced Air, Natural Gas
Heating (Y/N): Yes
Water Source: Public
Sewer: Public Sewer

Location

Loading map...

Directions: Starting from Main St SW in Los Lunas:Head south on Main St SW toward Luna AveTurn right onto Luna Ave SWContinue about 0.5 milesTurn left onto Huning Ranch Loop SWContinue straight about 0.3 milesTurn right onto Embudo Ave SWContinue down the street -- 219 Embudo Ave SW will be on your left

Mortgage Calculator

$
$
%
Monthly Payment**:
** All calculations are estimates and provided for informational purposes only. Actual amounts may vary.

Properties for Sale Similar to 219 Embudo Avenue SW, Los Lunas, NM

New Homes for Sale in Albuquerque Area

View All
Listing courtesy of Keller Williams Realty
Southwest MLS Logo Some of the information contained herein has been provided by SWMLS, Inc. This information is from sources deemed reliable but not guaranteed by SWMLS, Inc. The information is for consumers’ personal, non-commerical use and may not be used for any purpose other than identifying properties which consumers may be interested in purchasing.
Daria Derebera Realtor

Daria Derebera

Real Estate Broker in Albuquerque, NM