
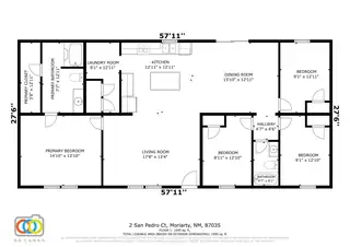
2 San Pedro Circle
Moriarty, NM 87035
$275,000
4 bd • 2 ba • 1,590 sqft • 1 acres
1 Story
Stories
$173
Per SQFT
2025
Year Built
01/04/2025
Listing Date
1075970
Listing #
87035
Zip Code
About This Property
Welcome Home. Beautiful Brand New 4-Bedroom Manufactured on Permanent Foundation situated on Large 1 Acre Lot just off a paved road and only minutes from I-40, offers ideal combination of comfort, modern design, and energy efficiency. On permanent foundation.Schedule your private showing today and make this exceptional home yours! **Looking for more than one home, Next Door Home also available.
Interior
Bathrooms Total:
2
Bathrooms Full:
2
Interior Features:
Kitchen Island, Main Level Primary, Tub Shower, Walk-In Closet(s)
Appliances:
Dishwasher, Free-Standing Electric Range, Refrigerator, Range Hood
Laundry Features:
Washer Hookup, Dryer Hookup, ElectricDryer Hookup
Flooring:
Carpet, Laminate
Window Features:
Low-Emissivity Windows, Vinyl
Building And Construction
Property Type:
Residential
Property Sub Type:
Manufactured Home, Mobile Home
Property Sub Type Additional:
Manufactured Home, Mobile Home
Building Area Total:
1,590 sqft
Year Built:
2025
Architectural Style:
Mobile Home, Ranch
Construction Materials:
Frame, Masonite
New Construction:
Yes
Roof:
Pitched, Shingle
Body Type:
Double Wide
Builder Model:
TRU28564A
Builder Name:
CMH INC Clayton Dba TRU
Green Energy Efficient:
Windows
Levels:
One
Mobile Length:
56
Mobile Width:
28
Model:
TRU28564A
Stories:
1
Property Condition:
New Construction
Exterior And Lot
Lot Size Acres:
1
Lot Size Square Feet:
43,560 sqft
Exterior Features:
Private Yard, Skirting
Direction Faces:
North
View (Yes/No):
Yes
Provisional
MLS #:
1075970
Current Use:
Horses
Listing Terms:
Cash, Conventional, FHA, VA Loan
Area And Schools
City:
Moriarty
Postal Code:
87035
MLS Area Major:
North Moriarty
Subdivision:
MORIARTY SUNSET ACRES
County:
Torrance
Horses Allowed:
Yes
Lot Features:
Corner Lot, Cul-De-Sac, Landscaped, Planned Unit Development, Views
Road Frontage Type:
City Street, See Remarks
Road Surface Type:
Dirt, Paved
Parcel Number:
1046054517012000000
Elementary School:
Moriarty
Middle School:
Moriarty
High School:
Moriarty
Utilities
Utilities:
Electricity Connected, Natural Gas Available, Sewer Connected, Water Connected
Cooling:
Refrigerated
Heating:
Central, Forced Air
Heating (Y/N):
Yes
Water Source:
Community/Coop
Sewer:
Septic Tank
Location
Directions: Travel on I-40 Eastbound (I-40 E) toward Moriarty.Take Exit 196 for Abraham's/I-40 Frontage Road.At the exit ramp, turn onto Abraham's/I-40 Frontage Road.Continue on Abraham's/I-40 Frontage Road and turn onto San Pedro Circle.This route will lead you directly to 2 San Pedro Circle in Moriarty.
Mortgage Calculator
$
$
%
Monthly Payment:
Properties for Sale Similar to 2 San Pedro Circle, Moriarty, NM
New Homes for Sale in Albuquerque Area
View All
Listing courtesy of Realty One of New Mexico
Some of the information contained herein has been provided by SWMLS, Inc. This information is from sources deemed reliable but not guaranteed by SWMLS, Inc. The information is for consumers’ personal, non-commerical use and may not be used for any purpose other than identifying properties which consumers may be interested in purchasing.


Daria Derebera
Real Estate Broker in Albuquerque, NM
Agent Contact Request Sent
Thank you for contacting us. An agent will reach out to you as soon as possible.
Showing Request Submitted
Thank you for scheduling a showing. We'll confirm the details with you shortly.
Schedule a Showing
Information Request Submitted
Thank you for your interest. We'll get back to you shortly.