About This Property
Captivating 3-bed, 2-bath home with attached 1-bed, 1-bath guest/studio apartment on 3.25 acres in scenic Bibo, New Mexico. While the home needs some love, it is fully livable, with solid bones and endless potential for the right buyer. The property is completely fenced, making it ideal for livestock, and includes access to irrigation--a valuable resource for anyone dreaming of a garden, orchard, or small-scale agricultural operation. With solar panels and community water, this property offers self-sufficiency and sustainability rarely found at this price point. And yes--Amazon, FedEx, and UPS all deliver here, so you'll enjoy modern convenience without giving up rural living. Plus, a local pub serves as a go-to spot for dining and community connection.
Interior
Bathrooms Total:
4
Bathrooms Full:
1
Bathrooms Half:
1
Bathrooms Three Quarter:
2
Interior Features:
Breakfast Bar, Ceiling Fan(s), Separate/Formal Dining Room, Home Office, Multiple Living Areas, Pantry, Walk-In Closet(s)
Laundry Features:
Propane Dryer Hookup, Washer Hookup, Dryer Hookup, ElectricDryer Hookup
Flooring:
Carpet, Concrete, Laminate
Window Features:
Single Pane
Building And Construction
Property Type:
Residential
Property Sub Type:
Detached
Property Sub Type Additional:
Detached
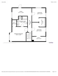
Building Area Total:
2,170 sqft
Year Built:
1935
Architectural Style:
Custom, Ranch
Construction Materials:
Adobe, Stucco
Attached Garage (Y/N):
Yes
Garage (Y/N):
Yes
Garage Spaces:
1
Roof:
Metal, Pitched
Builder Name:
Unkown
Green Energy Generation:
Solar
Levels:
Two
Stories:
2
Property Condition:
Fixer, Resale
Exterior And Lot
Lot Size Acres:
3.25
Lot Size Square Feet:
141,570 sqft
Exterior Features:
Courtyard, Fire Pit, Private Yard, Smart Camera(s)/Recording, Propane Tank - Owned
Parking Features:
Attached, Garage, RV Access/Parking
Direction Faces:
Southeast
View (Yes/No):
Yes
Provisional
MLS #:
1088208
Current Use:
Horses, Irrigation
Listing Terms:
Cash, Conventional, Owner May Carry
Other Equipment:
Satellite Dish
Area And Schools
Postal Code:
87014
County:
Cibola
Horses Allowed:
Yes
Irrigation Water RightsYN:
Yes
Lot Features:
Trees, Views
Other Structures:
Workshop
Road Frontage Type:
Private Road
Road Surface Type:
Dirt
Parcel Number:
2028063523133
Utilities
Utilities:
Cable Available, Electricity Connected, Propane, Water Connected
Heating:
Central, Forced Air, Propane
Heating (Y/N):
Yes
Water Source:
Community/Coop
Sewer:
Septic Tank
Location
Directions: Head North on 279 to 334, turn left onto Highway 5, then left onto Miranda, house on the right.
Listing courtesy of CENTURY 21 Camco Realty

Some of the information contained herein has been provided by SWMLS, Inc. This information is from sources deemed reliable but not guaranteed by SWMLS, Inc. The information is for consumers’ personal, non-commerical use and may not be used for any purpose other than identifying properties which consumers may be interested in purchasing.