47 Photos
Living Room *
Dining Room *
Kitchen *
Backyard *
Bedroom *
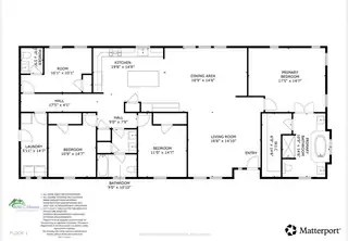
Floor Plan *
* Image categories are AI-generated and may not be 100% accurate
56 Lagrima Road
Belen, NM 87002
$375,000
4 bd • 3 ba • 2,125 sqft • 2.5 acres
1 Story
Stories
$176
Per SQFT
2023
Year Built
02/01/2026
Listing Date
1097634
Listing #
87002
Zip Code
About This Property
Experience peaceful country living in this beautiful 2023 Karsten Enchantment home, situated on a permanent foundation set on 2.5 fully usable acres. This spacious 30' x 70' home offers 4 bedrooms and 3 bathrooms with an inviting open-concept floor plan designed for both comfort & entertaining.The heart of the home is the large, beautifully appointed kitchen, featuring ample cabinetry, generous counter space, and a layout that flows seamlessly into the living and dining areas--perfect for gatherings and everyday living. Enjoy the peace of mind that comes with brand-new well and septic system, and the freedom of wide-open space ideal for animals, gardening, or future expansion.
Interior
Bathrooms Total:
3
Bathrooms Full:
2
Bathrooms Half:
1
Interior Features:
Dual Sinks, High Ceilings, Country Kitchen, Kitchen Island, Main Level Primary, Pantry, Skylights, Walk-In Closet(s)
Appliances:
Built-In Gas Range, Double Oven, Microwave, Refrigerator, Washer
Laundry Features:
Electric Dryer Hookup, Propane Dryer Hookup
Flooring:
Laminate
Window Features:
Double Pane Windows, Insulated Windows, Skylight(s)
Foundation Details:
Block, Combination, Concrete Perimeter, Permanent
Building And Construction
Property Type:
Residential
Property Sub Type:
Manufactured Home, Mobile Home
Property Sub Type Additional:
Manufactured Home, Mobile Home
Building Area Total:
2,125 sqft
Year Built:
2023
Architectural Style:
Mobile Home
Construction Materials:
Frame, Wood Siding
Roof:
Pitched, Shingle
Body Type:
Double Wide
Builder Model:
Enchantment
Builder Name:
Karsten
Levels:
One
Mobile Length:
70
Mobile Width:
30
Model:
Enchantment
Number Of Units Total:
1
Stories:
1
Property Condition:
Resale
Exterior And Lot
Lot Size Acres:
2.5
Lot Size Square Feet:
108,900 sqft
Exterior Features:
None, Propane Tank - Leased
Direction Faces:
North
View (Yes/No):
Yes
Provisional
MLS #:
1097634
Listing Terms:
Cash, Conventional, FHA, VA Loan
Area And Schools
City:
Belen
Postal Code:
87002
MLS Area Major:
Jarales Bosque
Subdivision:
Land Of Peter Sandoval
County:
Valencia
Lot Features:
Meadow, None, Views, Wooded
Road Frontage Type:
Private Road, Easement
Road Surface Type:
Dirt
Parcel Number:
100802340127401
Elementary School:
La Merced
Middle School:
Belen
High School:
Belen
Utilities
Utilities:
Electricity Available, Propane, Water Available
Cooling:
Refrigerated
Heating:
Propane
Heating (Y/N):
Yes
Water Source:
Private, Well
Sewer:
Septic Tank
Location
Directions: 1-25 N, Belen0.3 miTake exit 191 onto Camino Del Llano0.2 miTurn right onto Camino del Llano0.9 miTurn left onto S Main St0.6 miTurn right onto W Reinken Ave2.4 miTurn right onto NM-470.2 miTurn right onto NM-3044.4 miTurn right onto Lagrima Rd Go over the ditch Take a left & take the middle rd. through the green gate follow the rd. Until you see a huge tree in front of the house.
Mortgage Calculator
$
$
%
Monthly Payment**:
** All calculations are estimates and provided for informational purposes only. Actual amounts may vary.
Properties for Sale Similar to 56 Lagrima Road, Belen, NM
New Homes for Sale in Albuquerque Area
View All
Listing courtesy of Realty One of New Mexico
Some of the information contained herein has been provided by SWMLS, Inc. This information is from sources deemed reliable but not guaranteed by SWMLS, Inc. The information is for consumers’ personal, non-commerical use and may not be used for any purpose other than identifying properties which consumers may be interested in purchasing.
Some of the information contained herein has been provided by SWMLS, Inc. This information is from sources deemed reliable but not guaranteed by SWMLS, Inc. The information is for consumers’ personal, non-commerical use and may not be used for any purpose other than identifying properties which consumers may be interested in purchasing.
Daria Derebera
Real Estate Broker in Albuquerque, NM