
406 12TH Avenue NW
Rio Rancho, NM 87124
About This Property
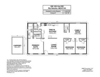
Welcome to a home tucked away on a full acre of land with incredible views of the Sandia Mountains. This property offers the perfect balance of space, comfort, and potential, whether you're looking to create a garden, add outdoor living areas, or simply soak in the wide-open skies. Inside, you'll find a recently updated kitchen with crisp white Fabuwood cabinetry, modern countertops, a stylish tile backsplash, and a gas range ready to go! Fresh carpet and laminate plank flooring flow throughout the home, giving every room a light and refreshed feel. Two spacious living areas provide flexibility for entertaining or quiet evenings, while the covered carport adds convenience. With its beautiful setting and thoughtful updates this is a home you won't want to miss!
Interior
Building And Construction
Exterior And Lot
Provisional
Area And Schools
Utilities
Location
Mortgage Calculator
Properties for Sale Similar to 406 12TH Avenue NW, Rio Rancho, NM
New Homes for Sale in Albuquerque Area
View All

Daria Derebera
Real Estate Broker in Albuquerque, NM
Agent Contact Request Sent
Thank you for contacting us. An agent will reach out to you as soon as possible.
Showing Request Submitted
Thank you for scheduling a showing. We'll confirm the details with you shortly.
Schedule a Showing
Information Request Submitted
Thank you for your interest. We'll get back to you shortly.