
2025 E JEMEZ Road 233
Los Alamos, NM 87544
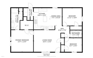
About This Property
Contingent offer accepted with 48 Hr First Right of Refusal. Welcome Home to this spacious double-wide 1 mile away from Los Alamos Labs! This well maintained 3 bed, 2 bath mobile home offers comfort, convenience and space on a generously sized lot. View this home today to discover a bright, open concept living area that flows seamlessly into the large kitchen, featuring an island perfect for meal prep or casual dining. Your primary bedroom offers a peaceful retreat with a spacious en-suite bath, complete with a double vanity. 2 additional bedrooms provide ample space for family, guests or a Home office. A serene setting with proximity to key amenities, making it a fantastic opportunity for those seeking comfort and convenience in Los Alamos.
Interior
Building And Construction
Exterior And Lot
Provisional
Area And Schools
Utilities
Location
Mortgage Calculator
Properties for Sale Similar to 2025 E JEMEZ Road 233, Los Alamos, NM
New Homes for Sale in Albuquerque Area
View All

Daria Derebera
Real Estate Broker in Albuquerque, NM
Agent Contact Request Sent
Thank you for contacting us. An agent will reach out to you as soon as possible.
Showing Request Submitted
Thank you for scheduling a showing. We'll confirm the details with you shortly.
Schedule a Showing
Information Request Submitted
Thank you for your interest. We'll get back to you shortly.